Dvojstĺpový zdvihák UNIVER DSZ 4.0 TA
Elektrohydraulický dvousloupový asymetrický zvedák pro osobní a lehké nákladní automobily s nosností 4 000 kg, s nízkým prahem.- nízký spojovací práh na podlaze mezi sloupy
- šířka zvedáku je zvolena tak, aby mezi sloupy byl dostatečný prostor pro pohodlnou práci, ale aby zvedák nezabíral zbytečně mnoho místa a umožňoval vytváření racionálních sestav
- asymetrická, variabilně nastavitelná nosná ramena (výsuvná a kloubově natáčecí) s automatickou aretací polohy jejich natočení, snadno tak lze dosáhnout zvedací body u menších i velkých automobilů
- výškově nastavitelné nosné podložky na ramenech, které mají vrchní plochu ze speciální pryže s optimálním designem
- ve zvolené pracovní poloze jsou pojezdové bloky s nosnými rameny aretovány bezpečnostními západkami, takže hydraulika zvedáků není zatěžována
- odjištění aretačních západek je ovládané elektromagneticky, což odpovídá moderním požadavkům na komfort obsluhy
- synchronizace nezávislá na zatížení s mechanickým vyrovnávacím systémem
- ovládací napětí 24 V
- vysoká úroveň bezpečnostního zajištění, včetně ventilů chránících před přetížením, kontroly rychlosti spouštění atd.
- kvalitní, osvědčená, spolehlivá hydraulika s komponenty z leteckého průmyslu, kompaktní hydraulický agregát, tichý chod
- vynikající provozní spolehlivost i při náročném využívání
- dlouhá životnost jen s minimálními nároky na údržbu
- konstrukční provedení splňuje náročné normy EU a CE
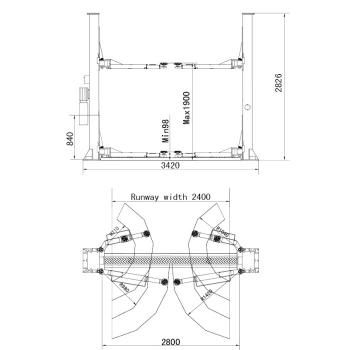
Technické parametry
| Nosnost | 4000 kg |
|---|---|
| Maximální zdvih | 1900 mm |
| Minimální zdvih | 98 mm |
| Celková výška | 2826 mm |
| Celková šířka | 3420 mm |
| Šířka mezi sloupy | 2800 mm |
| Napájení | 400 V / 2,6 kW / 50 Hz |
| Doba zdvihu | 45 s |
| Doba spouštění | 50 s |
| Hmotnost | 650 kg |
Objednávka tovaru
8460000000300
XSZ-7-5-1
XSZ-7-5-1
TAIDA XSZ-7-5-1 H.50 prodlužovací nástavec pod nosné podložky ramen (50 mm)
€ 5,60
8460000000310
XSZ-7-5-2
XSZ-7-5-2
TAIDA XSZ-7-5-2 H.75 prodlužovací nástavec pod nosné podložky ramen (75 mm)
€ 7,20
8460000000320
XSZ-7-5-3
XSZ-7-5-3
TAIDA XSZ-7-5-3 H.150 prodlužovací nástavec pod nosné podložky ramen (150 mm)
€ 11,60



