Dvojstĺpový zdvihák Consul 2.40 HD PRO
Dvousloupový elektrohydraulický zvedák (4000 kg) symetrický v tzv. bezprahovém provedení pro zvedání zejména transportérů s dlouhým rozvorem (4025 mm).- volně programovatelná konstrukční výška zvedáku (podle konkrétní výšky dílny)
- vysokotlaký hydraulický pohon se 2 vysokotlakými válci (uloženými uvnitř)
- žádné hydraulické hadice, žádná ocelová lana
- 2 elektromotory s teplotním jištěním
- nosné sloupy ze speciálního válcovaného profilu
- elektronické vyrovnávání úrovně zvedacích vozíků
- zvedací vozík se 6 válečkovými ložisky
- teleskopická výsuvná zvedací ramena s aretací
- otočná ramena (sada 4 ks) se speciálními úchyty pro elektromobily
- rychlospojky při připojení stlačeného vzduch oboustranně
- pružně uložené dveřní dorazy
- bezpečnostní signální tón při spouštění v oblasti nohou
- GS-zkušební plaketa, DIN EN 1493, CE-certifikát
- mimořádně vysoká spolehlivost a velmi dlouhá životnost
- špičková kvalita (vyrobeno v Německu)
Technické parametry
| Nosnost | 4000 kg |
|---|---|
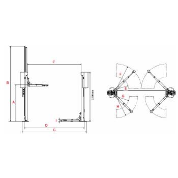
| Výška zdvihu (A) | 1915 mm |
| Doba zdvihu / spouštění | 40 s |
| Nejnižší výkyvná výška (I) | 85 mm |
| Vysunutí ramen (3-dílná) (G-H) | 760–1600 mm |
| Vysunutí ramen (3-dílná) (E-F) | 760–1600 mm |
| Průjezdná šířka zvedáku (D) | 2490 mm |
| Mezera mezi sloupy vnitřní (J) | 2830 mm |
| Šířka (C) | 3400 mm |
| Výška (B) | min. 2560 – max. 3965 mm |
| Elektromotor | 2 × 2,2 kW |
| Napětí | 400 V / 50 Hz |
| Jištění | 20 A |
| Krytí | IP 54 |
Volitelné příslušenství:
566067 Sada (4 ks) pozinkovaných nájezdových ramp pro ulehčení podchycení automobilů s nízko uloženými podvozky
432500 Upevňovací materiál pro zvedáky s nosností až 7000 kg, 12 ks reaktivních kotev M16, lepicí patrony a kroužky
423160 ConSoft Diagnose-Software, 1 licence, údržbový a diagnostický software pro dvousloupové zvedáky
371005 Stropní vypínání pro větší bezpečnost při nízké výšce stropu (světelná závora)
365189 Stropní vypínání pro větší bezpečnost při nízké výšce stropu (tahový spínač)
565945 Distanční objímky pro nosná ramena dl. 100 mm, sada 4 ks
641100 Distanční objímky pro nosná ramena dl. 12 mm, sada 4 ks
565952 Distanční objímky pro nosná ramena dl. 150 mm, sada 4 ks
565960 Distanční objímky pro nosná ramena dl. 200 mm, sada 4 ks
397349 Distanční objímky pro nosná ramena dl. 35 mm, sada 4 ks
565937 Distanční objímky pro nosná ramena dl. 50 mm, sada 4 ks
492025 Kabelový můstek pro všechny dvousloupové zvedáky Consul, sada
707380 Příplatek za výkyvná ramena se systémem kolových držáků, nosnost zvedáků se snižuje na 3500 kg
520601 Úchyty pro vozy Ford Transit, sada 4 ks
567941 Úchyty pro terénní vozy Mercedes-Benz, sada 4 ks
520114 Úchyty pro vozy MB Sprinter / VW Crafter, sada obsahuje 2 ks pro přední a 2 ks pro zadní nápravu
705731 Úchyty pro vozy Tesla
520122 Úchyty pro vozy VW Amarok, sada 2 ks pro přední a 2 ks pro zadní nápravu
462226 Hydraulický olej (HLP 22) vhodný pro zvedáky s hydraulickým pohonem, nádoba 5 l
399832 Jednotka pro úpravu stlačeného vzduchu s olejovačem a odlučovačem vody s držákem, připojení 1/4"
Objednávka tovaru
3310005660670
566067
566067
CONSUL 566067 Sada 4ks nájezdových ramp pro vozy s nízko uloženými podvozky
na objednávku
na objednávku
€ 1 586,00
3310004325000
432500
432500
CONSUL 432500 Upevňovací materiál pro 2-sloupové zvedáky do 7000 kg
na objednávku
na objednávku
€ 298,40
3310004231600
423160
423160
CONSUL 423160 ConSoft Diagnose-Software (1 licence)
na objednávku
na objednávku
€ 3 107,00
3310005659450
565945
565945
CONSUL 565945 Distanční objímky (4 ks) pro nosná ramena dl. 100 mm
na objednávku
na objednávku
€ 395,60
3310006411000
641100
641100
CONSUL 641100 Distanční objímky (4 ks) pro nosná ramena dl. 12 mm
na objednávku
na objednávku
€ 95,60
3310005659520
565952
565952
CONSUL 562952 Distanční objímky (4 ks) pro nosná ramena dl. 150 mm
na objednávku
na objednávku
€ 439,60
3310005659600
565960
565960
CONSUL 565960 Distanční objímky (4 ks) pro nosná ramena dl. 200 mm
na objednávku
na objednávku
€ 443,60
3310003973490
397349
397349
CONSUL 397349 Distanční objímky (4 ks) pro nosná ramena dl. 35 mm
na objednávku
na objednávku
€ 311,60
3310005659370
565937
565937
CONSUL 565937 Distanční objímky (4 ks) pro nosná ramena dl. 50 mm
na objednávku
na objednávku
€ 351,60
3310007073800
707380
707380
CONSUL 707380 Příplatek za výkyvná ramena se systémem kolových držáků
na objednávku
na objednávku
€ 4 844,00
3310005679410
567941
567941
CONSUL 567941 Úchyty pro terénní vozy Mercedes-Benz
na objednávku
na objednávku
€ 1 995,00
3310005201140
520114
520114
CONSUL 520114 Sada adaptérů MB Sprinter / VW Crafter (4 ks)
na objednávku
na objednávku
€ 1 762,00
3310003998320
399832
399832
CONSUL 399832 Jednotka pro úpravu stlačeného vzduchu
na objednávku
na objednávku
€ 381,20



